Πολυκατοικία Μαραθωνοδρόμου 127 Μαρούσι

Πολυκατοικία Μαραθωνοδρόμου 127 Μαρούσι

Περιγραφή

Ανά όροφο τρεις ιδιοκτησίες, εκτός από τον 3ο όροφο όπου θα είναι δύο. Τέσσερα Διαμερίσματα 115-120τ.μ., και 5 μεζονέτες ~130τ.μ. με 3/ΥΔ, 2 μπάνια, Υπόγεια πάρκινγκ και πάρκινγκ Πυλωτής, Ενδοδαπέδια, Αντλία Θερμότητας Φυσ. Αερίου, Α++, extra full.

 

Φωτογραφίες

Plans

Δυτική Όψη – Ανατολική Όψη

Βόρεια Όψη

Νότια Όψη

Τομή ΒΒ

Τομή ΑΑ

Κάτοψη Δωματίων

Κάτοψη Ε Ορόφου

Κάτοψη Δ Ορόφου

Κάτοψη Γ Ορόφου

Κάτοψη Β Ορόφου

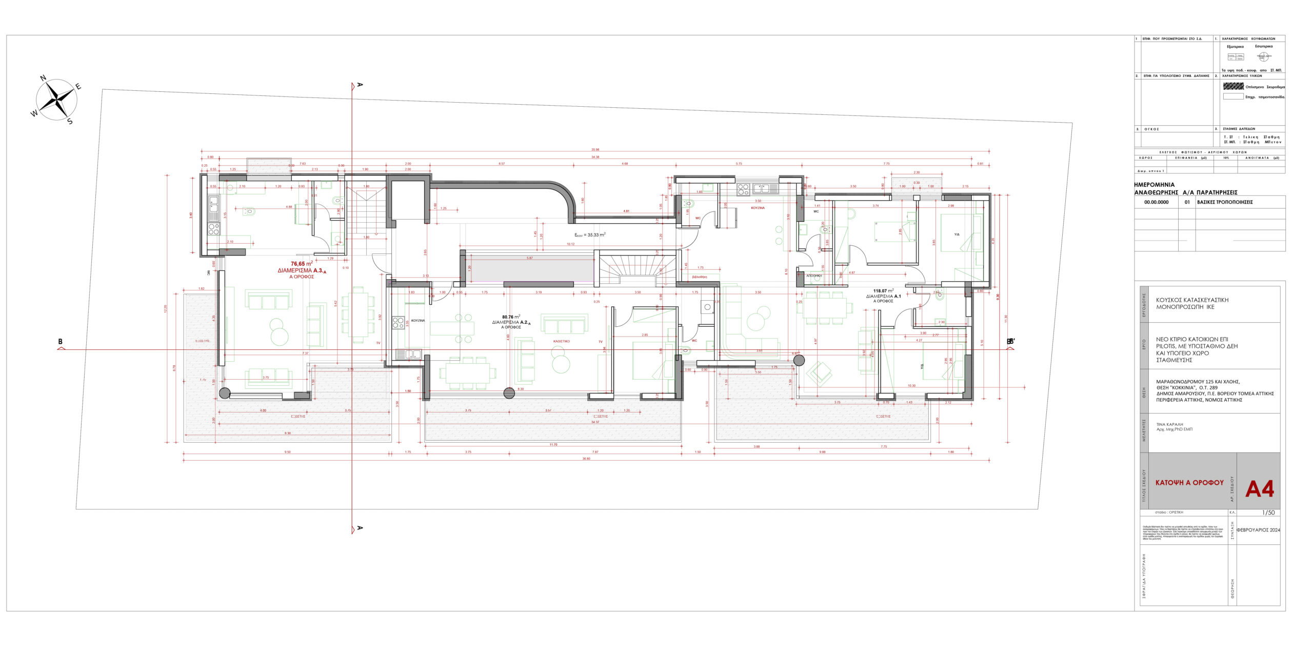
Κάτοψη Α Ορόφου

Κάτοψη Ισογείου

Κάτοψη Υπογείου

Ενδιαφέρεστε για αγορά κατοικίας;

Δεν έχετε παρά να συμπληρώσετε τα στοιχεία σας και εμείς θα έρθουμε σε επικοινωνία μαζί σας

Φόρμα ενδιαφέροντος